Beschrijving

Vrijstaand wonen met ruimte, rust én mogelijkheden.

Aan een rustige weg in het gezellige dorp Doezum staat deze karaktervolle vrijstaande woning met garage op een perceel van 320m2. De woning biedt met circa 110m2 woonoppervlakte, vier slaapkamers, een woonkamer en eetkeuken een prima basis om de woning naar eigen smaak te moderniseren.

De woning is gebouwd in 1959 en is voorzien van houten kozijnen en dubbele beglazing. Hoewel modernisering wenselijk is, is het geheel netjes onderhouden en biedt het volop kansen om de woning naar eigen smaak en hedendaags wooncomfort aan te passen. 

De indeling kenmerkt zich door prettige ruimtes en een praktische indeling. De diepe garage en de bijkeuken zorgen daarnaast voor extra bergruimte en functionaliteit. 

De tuin rondom de woning is verzorgd aangelegd en bestaat uit een combinatie van bestrating, gazon en groen. Hier geniet u van rust en privacy. 
De ligging is bovendien zeer aantrekkelijk: tegenover buurthuis ’t Stuurhuus en met een goede bereikbaarheid richting de A7. Een fijne woonomgeving met voorzieningen binnen handbereik. 

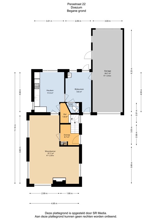
Indeling
Bij binnenkomst treft u de entree met meterkast, trapopgang en toegang tot de woonkamer. De woonkamer staat in verbinding met de gesloten keuken, die is uitgerust met een oven, gasstel, koelkast en afzuigkap. Vanuit de keuken bereikt u een hal met toegang tot de ruime kelder. Ook is er vanuit de keuken een doorgang naar de bijkeuken, waar zich het toilet en de cv-installatie bevinden. 

De bijkeuken biedt toegang tot zowel de voor- als achterzijde van de woning en tot de royale, diepe garage, die eveneens via een deur aan de voorzijde bereikbaar is. 

Op de eerste verdieping bevinden zich vier slaapkamers, een badkamer en diverse praktische inbouwkasten. Via de kleinste slaapkamer is middels een vlizotrap de vliering bereikbaar. 

Kenmerken
-	Vrijstaande woning 
-	Diepe, multifunctionele garage 
-	Bouwjaar: 1959
-	Houten kozijnen
-	Dubbele beglazing 
-	Energielabel:
-	4 slaapkamers 

Doezum is een rustig dorp gelegen in de gemeente Westerkwartier. Het dorp is omgeven door weidse landschappen en veel groen. Het dorp biedt een fijne woonomgeving met een landelijke sfeer terwijl uitvalswegen goed bereikbaar zijn. Ideaal voor wie wil genieten van ruimte, rust en het karakter van het Groningse platteland. 

Wilt u de voordelen van deze woning zelf ervaren? Dan leiden wij u graag rond door de Perastraat 22 in Doezum.

Kenmerken