Beschrijving

Vrijstaande woning met slaapkamer en badkamer op de begane grond.

Gelegen in het sfeervolle dorp Marum, bieden wij deze vrijstaande woning aan, ideaal voor levensloopbestendig wonen. Met een perceel van 485 m2, een diepe achtertuin en een losstaande garage, biedt deze woning volop mogelijkheden. Dankzij een slaapkamer en de badkamer op de begane grond is deze woning perfect geschikt voor ieder levensfase, voor elke doelgroep van jonge gezinnen tot senioren die comfortabel willen wonen zonder de trap op en af te hoeven. 

Indeling van de woning: 
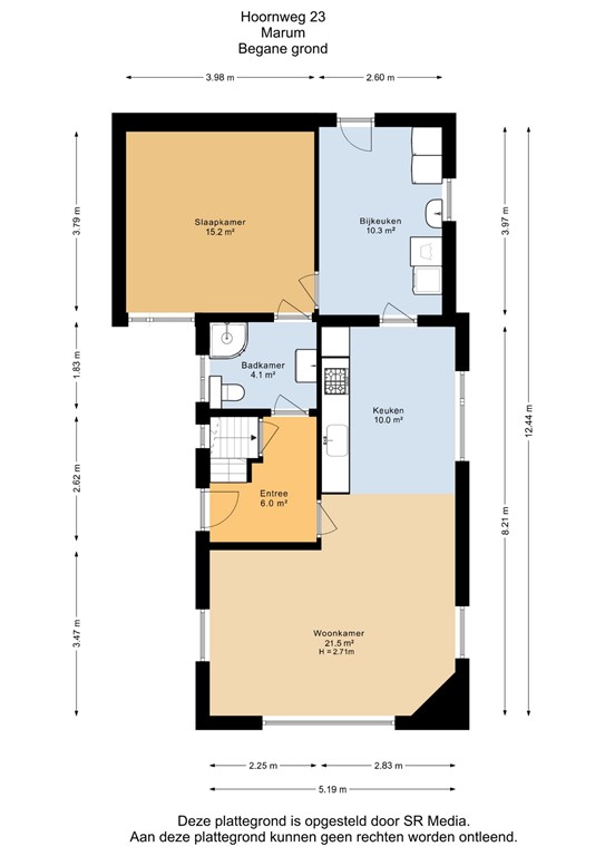
Bij binnenkomst in de woning betreedt u de hal, die toegang biedt tot de woonkamer, de trapopgang naar de eerste verdieping, de meterkast en de kelder. De woonkamer heeft een openverbinding met de keuken, waardoor er een prettige sfeer en ruimte ontstaat. De eenvoudige keuken is praktisch ingericht en geeft doorgang tot de bijkeuken. De bijkeuken is ruim opgezet en er bevinden zich aansluitingen voor witgoed, een wastafel en de doorgang naar de achtertuin. 

Vanuit de bijkeuken is de ruime slaapkamer op de begane grond bereikbaar. Deze slaapkamer heeft directe toegang tot de badkamer, welke is voorzien van een douche, toilet en wastafel. De indeling van deze begane grond maakt het mogelijk om volledig levensloopbestendig te wonen, zonder dat u gebruik hoeft te maken van de trap naar de eerste verdieping. 

Op de eerste verdieping bevinden zich twee slaapkamers, beide met praktische ingebouwde kasten voor extra opbergruimte. De overloop op de eerste verdieping biedt ook voldoende berging, wat bijdraagt aan het ruime en praktische karakter van de woning. 

De woning is voorzien van dubbele beglazing, met uitzondering van twee kleine ramen, en houten kozijnen. Voor de verwarming is er een cv-installatie aanwezig. Verder beschikt de woning over een kelder, ideaal voor extra opslagruimte. 

De tuin: 
De diepe achtertuin is een pluspunt. Het is een fijne, groene ruimte met veel privacy, waar kinderen kunnen spelen, of waar u kunt genieten van de rust en het buitenzijn. De losstaande stenen garage biedt voldoende ruimte voor een auto, fietsen of opslag van gereedschap of andere spullen. 

Marum: 
Marum, gelegen in de gemeente Westerkwartier, is een gezellig en kindvriendelijk dorp met een uitstekende bereikbaarheid. De woning ligt op korte stand van het centrum van Marum, waar u terecht kunt voor al u dagelijkse boodschappen. Daarnaast bevinden scholen, winkels, sportvoorzieningen en andere belangrijke faciliteiten zich in de directe omgeving. Door de nabijheid van de A7 bent u snel onderweg naar de omliggende steden en dorpen, wat de locatie bijzonder praktisch maakt. 

Maak snel een afspraak voor een bezichtiging en ervaar zelf het gemak en de ruimte van deze prachtige vrijstaande woning!

Kenmerken