Beschrijving

Instapklare onderhoudsvriendelijke hoekwoning op loopafstand van de winkels. 

Welkom in deze instapklare hoekwoning nabij het centrum van Marum. Een moderne, duurzaam en sfeervol thuis waar alles tot in de puntjes verzorgd is. Hier geniet u van comfort, lage energielasten en een fijne ligging op loopafstand van het centrum. 

Op een rustige, kindvriendelijke maar vooral groene locatie in Marum staat deze nette en instapklare hoekwoning. Een ideale plek voor starters, jonge gezinnen of alleenstaanden die op zoek zijn naar een modern en energiezuinig huis met een fijne sfeer. Deze woning is de afgelopen jaren met zorg onderhouden en op belangrijke punten gemoderniseerd, waardoor u hier zonder te klussen direct kunt genieten van comfortabel wonen. 

Bij binnenkomst valt meteen de frisse, verzorgde uitstraling op. In de hal bevinden zich de meterkast, het toilet en de trapopgang naar boven. De sfeervolle woonkamer met visgraat laminaatvloer is prettig ingedeeld met een openverbinding met de keuken. De keuken is in 2022 volledig vernieuwd. Hier kookt u op inductie, beschikt u over alle gewenste inbouwapparatuur, waaronder een vaatwasser, combi-oven en koelkast. Vanuit de keuken is er toegang tot een handige trapkast die veel ruimte biedt voor uw keukenvoorraad. In de bijkeuken vindt u de aansluiting voor de wasmachine en toegang tot extra opbergruimte. Vanuit hier loopt u zo de besloten tuin in. 

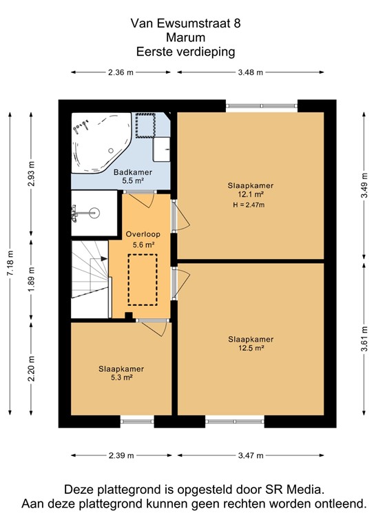
Op de eerste verdieping bevinden zich drie keurige slaapkamers en een complete badkamer met ligbad, douche en wastafel. Via een vlizotrap op de overloop is de zolder bereikbaar, een ideale plek voor extra opslagruimte. De zolder is op stahoogte.

De woning is bijna geheel voorzien van kunststof kozijnen met dubbele beglazing, wat niet alleen zorgt voor goed isolerend vermogen maar ook voor weinig onderhoud. Alleen de achterdeur heeft nog enkel glas. 

Duurzaamheid en onderhoud zijn in deze woning belangrijke thema’s geweest. In 2023 zijn er twaalf zonnepanelen geplaatst. Ook is in 2024 de spouwmuurisolatie uitgevoerd en de gevel professioneel gereinigd en gevoegd. De meterkast is in 2022 uitgebreid met extra groepen ten behoeve van de inductiekookplaat en de zonnepaneleninstallatie. Alles is dus keurig op orde en helemaal klaar voor de toekomst. 

De tuin is onderhoudsvriendelijk aangelegd, zowel aan de voor- als aan de achterzijde. Dankzij de hoekligging beschikt u over extra ruimte en privacy. Via de zijkant van de woning is er een praktische doorgang naar de achtertuin, waar ook een houten berging aanwezig is voor fietsen en tuingereedschap. Een heerlijke plek om te ontspannen of gezellig buiten te zijn. 

De ligging is ideaal, een rustige en kindvriendelijke buurt en toch op loopafstand van het centrum van Marum. Hier vindt u alle voorzieningen die nodig zijn, zoals supermarkten, winkels, drogist, sportgelegenheden, kinderopvang en scholen. Ook de bereikbaarheid is uitstekend. Via de A7 bent u in korte tijd in de grotere steden als Groningen, Drachten en Assen. 

Deze woning is een heerlijke plek om thuis te komen. Heeft deze woning uw interesse gewekt? Neem dan contact met ons op voor een bezichtiging.

Kenmerken