Beschrijving

Wonen in het hart van Oldekerk
 
In het gezellige en levendige Oldekerk, onderdeel van de gemeente Westerkwartier (Groningen), staat deze vrijstaande woning op een ruime hoeklocatie met volop privacy en mogelijkheden. Een slaapkamer op de begane grond en 2 slaapkamers op de verdieping.
 
De woning is gebouwd in 1965 en staat op een fraai perceel van 510 m² eigen grond. Dankzij de uitbreiding van het dorp ligt het huis nu vrij op de hoek en is er extra grond aangekocht naast de woning – ideaal voor het realiseren van een uitbouw, garage, carport of ruim tuinhuis.
 
De frisse gele gevelsteen en de knusse uitstraling geven het huis een charmant karakter. Een fijne plek voor wie op zoek is naar ruimte, rust en karakter.
 
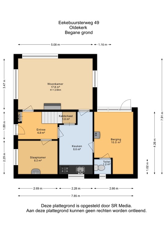
Indeling
Begane grond
Entree/hal met trapopgang en meterkast. Aan de rechterzijde bevindt zich een slaapkamer op de begane grond – praktisch voor wie gelijkvloers wil wonen.
 
De lichte woonkamer met haardpartij biedt uitzicht op de straat en directe verbinding met de gesloten keuken. De keuken beschikt over een ruime kelderkast voor voorraad en keukenbenodigdheden.
 
Achterin bevindt zich het achterhuis/berging met de toiletruimte en extra opbergmogelijkheden.
 
Eerste verdieping
Overloop, twee slaapkamers, diverse bergruimtes en een eenvoudige doucheruimte met wastafel.
 
Bijzonderheden 
- Verwarming via gaskachels
- Warm water via geiser
- Houten kozijnen, deels voorzien van dubbele beglazing
- Ruime tuin rondom de woning
- Mogelijkheid voor garage, carport of tuinhuis
- Niet-bewoningsclausule en ouderdomsclausule van toepassing (“as is, where is”)
 
De omgeving
 
Oldekerk en het aangrenzende Niekerk vormen samen een actief tweelingdorp met volop voorzieningen. In de directe omgeving vind je basisscholen, sportverenigingen, een overdekt zwembad en het Terra College.
 
Voor natuurliefhebbers ligt natuur- en recreatiegebied Kuzemerkooi op loopafstand – een prachtig gebied met wandelpaden en het bekende Kabouterpad Oldekerk.
 
De ligging is ideaal: binnen korte tijd bereik je Zuidhorn, Grootegast en Groningen, terwijl je geniet van het dorpsgevoel en de ruimte van het Westerkwartier.
 
Interesse?
 
Ben jij op zoek naar een vrijstaande woning in Oldekerk met een ruim perceel, slaapkamer op de begane grond en mogelijkheden om te moderniseren of uit te breiden?
 
Dan is Eekebuursterweg 49 zeker een bezichtiging waard.
 
Van harte welkom – kom de mogelijkheden zelf ontdekken!

Kenmerken