Beschrijving

2-onder-1-kapwoning in het sfeervolle Zoutkamp 

Aan een karakteristieke straat in het pittoreske vissersdorp Zoutkamp ligt deze charmante 2-onder-1-kapwoning met een woonoppervlakte van ca 82m2 en een perceel van 95m2. Een woning met volop potentie en ruimte om geheel naar eigen wens te moderniseren. Ideaal voor starters of mensen die niet bang zijn om de handen uit de mouwen te steken. De woning heeft wat liefde en aandacht nodig, maar daar staat een goede ligging in de straat tegenover. 

Indeling: 
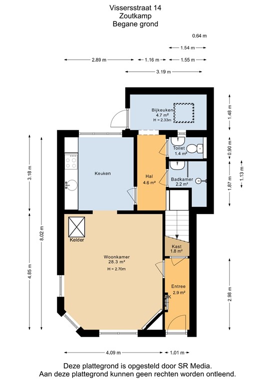
Via de entree komt u in de hal met opbergkast en meterkast, vanwaar u doorloopt naar de woonkamer. De woonkamer is gesitueerd aan de straatzijde en beschikt over een haardpartij, wat kan zorgen voor een warme en gezellige sfeer. Vanuit de woonkamer is er toegang tot de kelder en de keuken.

De keuken is voorzien van een basisopstelling. Vanuit de keuken bereikt u de tussenhal met badkamer, een separaat toilet en de bijkeuken. De bijkeuken geeft een achter doorgang naar buiten. 

Op de eerste verdieping bevindt zich de overloop met toegang tot drie slaapkamers, waarvan meerdere voorzien van inbouwkasten. Vanaf de overloop is tevens de vlizozolder bereikbaar middels een vlizotrap. 

Zoutkamp is een karakteristiek en levendig dorp met een rijke historie, gelegen aan het Reitdiep. Het dorp staat bekend om zijn vissershaven, historische panden en gemoedelijk dorpssfeer. Dagelijkse voorzieningen zoals winkels, horeca, een huisartsenpraktijk en basisschool zijn aanwezig. Daarnaast is Zoutkamp gunstig gelegen ten opzichte van omliggende plaatsen en steden. 

Bijzonderheden: 
-	Woonoppervlakte: 82m2
-	Cv-verwarming
-	Gedeeltelijk dubbel en enkel glas
-	Energielabel F
-	Let op de onderstaand genoemde clausules
-	Twee bezichtigingsmomenten, uitsluitend op aanmelding. 

De woning is altijd verhuurd geweest door de eigenaar. Om die reden zijn er geen lijst van zaken en vragenlijsten beschikbaar. Op deze verkoop zijn de clausules ‘as is, where is’ en de niet-zelfbewoningsclausule van toepassing. 

Wilt u deze woning met eigen ogen bekijken en de mogelijkheden ervaren? Voor deze woning worden twee bezichtigingsmomenten georganiseerd: 

-	Dinsdag 10 maart 2026 tussen 10:00 en 11:30
-	Vrijdag 13 maart 2026 tussen 14:30 en 16:00

Bent u geïnteresseerd en wilt u bij één van deze momenten aanwezig zijn? Dan ontvangen wij graag uw aanmelding. Na aanmelding houden wij rekening met uw komst.

Kenmerken