Beschrijving
Tussenwoning in kindvriendelijke wijk in Grijpskerk. Klaar voor een nieuwe toekomst.
Bent u opzoek naar een fijne plek om uw woonavontuur te beginnen? Deze tussenwoning uit 1975 op een kindvriendelijke locatie in Grijpskerk biedt precies dat. Een solide basis, volop mogelijkheden én een prettige ligging. Met Groningen op slechts 25 auto minuten en alle dagelijkse voorzieningen binnen handbereik, winkels, supermarkten, scholen, sportfaciliteiten en gezellig horeca. Hier woont u op een heerlijk rustige plek zonder in te leveren op gemak.
Let op! Wegens een wetswijziging kunnen wij de komende vier weken alleen bezichtigingen inplannen voor huurders van de woningcorporatie die actief is binnen de gemeente Westerkwartier. Voldoet u aan deze voorwaarden en hebt u interesse? Neem dan contact met ons op. Bent u geen huurder? Laat dan uw gegevens achter: wij plaatsen u op de gegadigdenlijst. Vanaf 5-1-2026 benaderen wij deze lijst indien er nog geen kandidaat-koper is gevonden.
De woning beschikt over een energielabel C, is voorzien van houten kozijnen met grotendeels dubbele beglazing. Met een woonoppervlakte van 94m2 en een perceel van 125m2 is dit een prettig huis voor starters, jonge gezinnen of iedereen die compleet wil wonen.
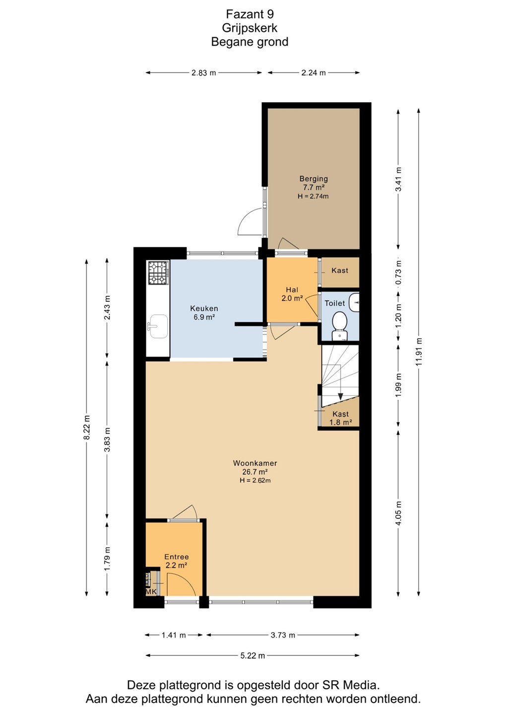
Via de hal met meterkast stapt u in de lichte woonkamer. De ruimte is praktische ingedeeld en beschikt over een handige trapkast. De halfopen keuken aan de achterzijde heeft een speels barretje waardoor u contact houdt met de woonkamer. De keuken is eenvoudig uitgevoerd en voorzien van een oven, 4-pits gasfornuis en een vaatwasser aansluiting.
Vanuit de woonkamer komt u in een tussenhalletje met toilet, bergkast en toegang naar de bijkeuken. De bijkeuken is ruim en kan voor verschillende doeleinden gebruikt worden.
Op de eerste verdieping bevinden zich drie slaapkamers, twee ruime kamers en een kleinere kamer. De badkamer op de eerste verdieping is uitgerust met een douche, wastafel, toilet en een extra wasmachineaansluiting.
Via een vaste trap bereikt u de zolder, waar de cv-installatie staat. Deze ruimte heeft twee dakraampjes en beidt veel opbergmogelijkheden.
De achtertuin is ruim, onderhoudsvriendelijk betegeld en beschikt over een achterom. Een fijne plek om te genieten van het buitenzijn.
Grijpskerk is een dorp in de gemeente Westerkwartier en voorzien van alle voorzieningen. Winkels, supermarkten, scholen, sportvoorzieningen en horecagelegenheden.
Bijzonderheden:
- Energielabel C
- Er dient gebruik te maken van een projectnotaris
- Eigen bewoning clausule
- U aanvaardt de woning zoals u hem ziet
- Eerste vier weken uitsluitend bezichtigingen voor huurder van de woningcorporatie
- Kosten voor het uitmeten van de kavel zijn voor koper (minimaal: €475-,)
- Starterslening gemeente Westerkwartier mogelijk
- Er zijn bij deze verkoop geen lijst van zaken en vragenlijst aanwezig.
Wilt u zelf ervaren wat deze tussenwoning in een kindvriendelijke buurt in Grijpskerk te bieden heeft? Neem gerust contact met ons op, dan leiden we u graag rond door de woning. Houdt hierbij wel rekening met de eerdergenoemde voorwaarden.