Beschrijving
Karakteristieke twee-onder-een-kapwoning in het centrum van Marum
Gelegen in het gezellige centrum van Marum, biedt deze karakteristieke twee-onder-een-kapwoning een ideale combinatie van comfort, ruimte en praktische voorzieningen. Perfect voor starters, gezinnen of iedereen die op zoek is naar een woning met een ruime achtertuin en goede bereikbaarheid van alle faciliteiten. De kaveloppervlakte is maar liefst 427 m².
Op loopafstand van deze woning vindt u supermarkten, winkels, sportvoorzieningen en scholen. Alles wat u nodig hebt is binnen handbereik, en dat maakt het dagelijks leven een stuk eenvoudiger.
De woning is aan de voorzijde voorzien van kunststof kozijnen en triple glas, waardoor je profiteert van betere isolatie en een lagere energierekening. De vloerverwarming in de woonkamer zorgt voor extra comfort, terwijl de cv-ketel uit 2020 ook bijdraagt aan een efficiënt energieverbruik.
Ruimtes in het huis:
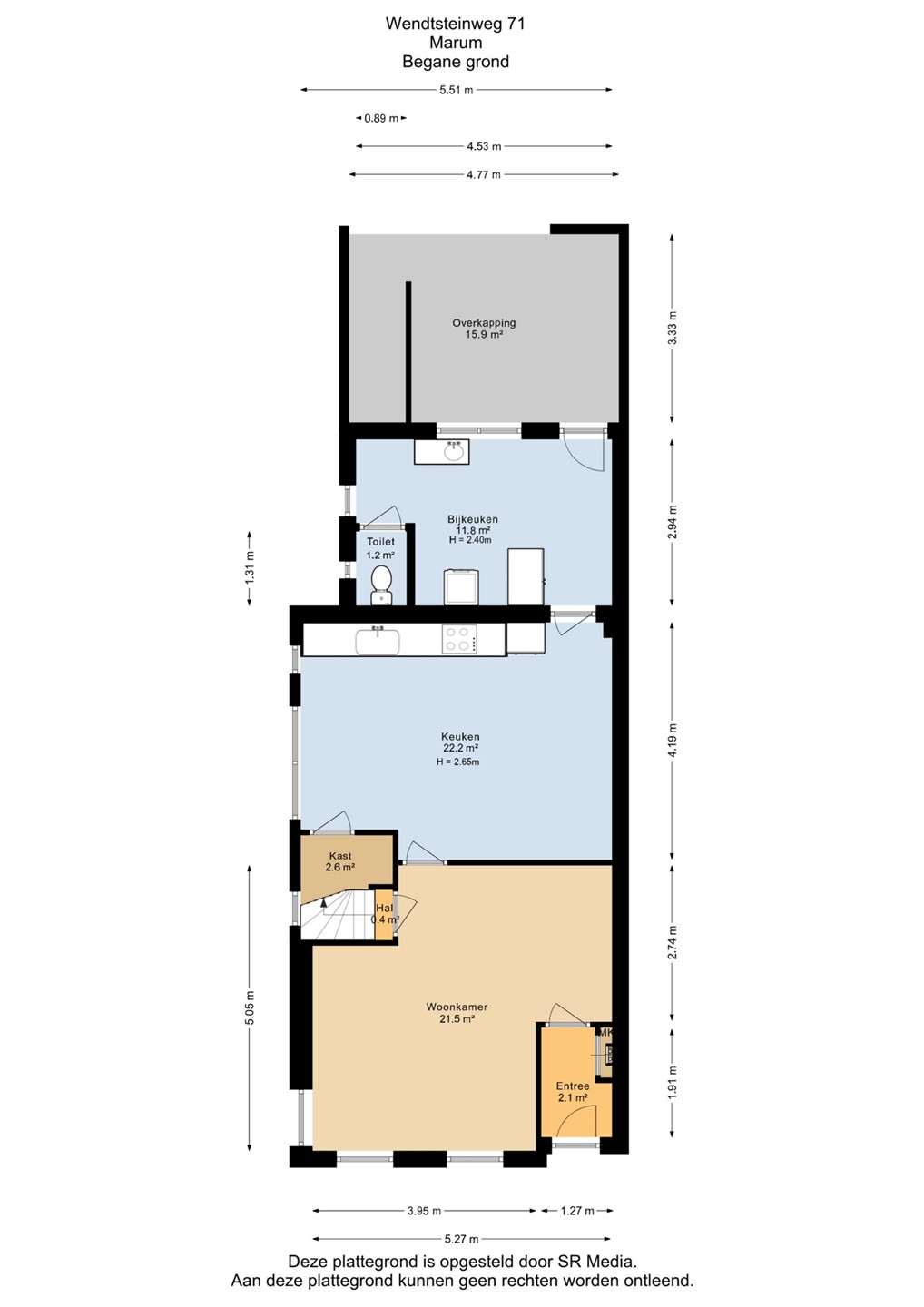
Aan de voorzijde van de woning vindt u de entree. In de hal zit de meterkast, toegang tot de woonkamer aan de straatzijde. De begane grond heeft een fijne indeling met een royale eetkeuken, waar je heerlijk kunt genieten van een ruim opgezette keuken. Deze eetkamer biedt ruimte voor een grote eettafel en staat in verbinding middels een deur met de woonkamer, ideaal om de ruimtes van elkaar af te sluiten. Vanuit de keuken/eetkamer komt u in de bijkeuken. De handige bijkeuken met toilet en witgoedaansluiting maakt het dagelijks huishouden eenvoudig en praktisch. De kelder in deze woning geeft extra gemakken voor het opbergen van uw spullen.
In de woonkamer is de trapopgang naar de eerste verdieping te vinden middels een kleine hal. Op de bovenverdieping bevinden zich drie slaapkamers, de badkamer en een kast voor extra opslagruimte. De badkamer is voorzien van een dubbele wastafel, ligbad, douche en toilet. Een van de slaapkamers heeft een eigen toegang tot een ruim balkon/dakterras, waar u kunt genieten van de zon of een rustige avond.
De tuin:
Achter de woning ligt een diepe tuin waar u volop kunt genieten van de buitenlucht. De tuin heeft niet alleen veel ruimte, maar is ook voorzien van een schuur ideaal voor tuingereedschap of het stallen van fietsen. De oprit aan de zijkant van de woning zorgt voor parkeergelegenheid op eigen terrein en doorgang naar de achtertuin.
Deze woning biedt niet alleen praktische voordelen, maar ook een mooi aanzicht en een sfeervolle uitstraling. Met een kavel van 427m2 biedt de woning voldoende ruimte zowel binnen als buiten. Het energielabel is een C.
Marum:
Marum is een gezellig en levendig dorp in de gemeente Westerkwartier. Met meerdere winkels, sportvoorzieningen, supermarkten en scholen voorziet Marum in alle voorzieningen. De bereikbaarheid naar grotere steden zoals Drachten, Assen en Groningen door de A7 op 5 autominuten is ideaal.
Bent u enthousiast geworden over deze charmante twee-onder-een-kapwoning in Marum? Neem dan snel contact met ons op voor een bezichtiging, en ontdek zelf de charme van deze woning.