Beschrijving
Instapklare twee-onder-een kapwoning met vrij uitzicht in De Wilp
In het gemoedelijke De Wilp, een dorp dat bekendstaat om zijn vriendelijke gemeenschap en landelijk karakter, vindt u deze uitstekend onderhouden twee-onder-een-kapwoning uit 2003. De brede oprit, aangebouwde garage en de verzorgde royale tuin geven de woning direct een uitnodigende uitstraling. Dankzij de extra tuin aan de voorzijde en de strakke achtertuin, voelt het geheel ruimtelijk en verzorgd aan. Deze woning biedt u luxe, ruimte, vele voorzieningen, veel privacy met een landelijk gevoel op een riante kavel van maar liefst 508 m2.
Ruimtelijk wonen met luxe afwerking
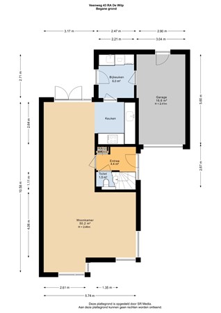
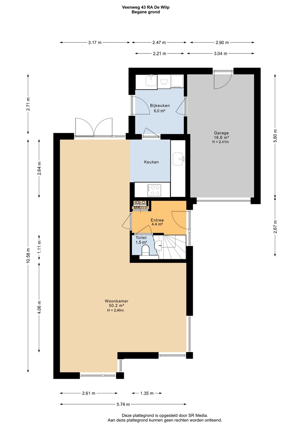
Binnen treft u een volledig instapklare woning aan waarin comfort en stijl centraal staan. Via de entree aan de zijkant komt u in de hal terecht met de meterkast, het toilet, de trapopgang en doorloop naar de ruime woonkamer. Deze staat in open verbinding met de moderne en luxe keuken, die volledig is uitgerust met inductiekookplaat met geïntegreerde afzuiging, vaatwasser, koelkast en combi-oven. Openslaande tuindeuren aan de achterzijde geven direct toegang tot de diepe tuin, waar u kunt genieten van een weids en vrij uitzicht over de landerijen en de ijsbaan van De Wilp.
De aangebouwde bijkeuken biedt extra ruimte, een spoelplek, witgoedaansluiting en directe toegang tot de tuin en de garage. De aangebouwde garage is voorzien van een geïsoleerde sectionaaldeur, wat zorgt voor extra gemak.
Met voorzieningen zoals een waterontharder, warmteboiler, 14 zonnepanelen en een energielabel A+ is de woning bovendien helemaal klaar voor de toekomst.
Buitenshuis
De diepe achtertuin voorziet in veel privacy en een tuinhuis met berging. Het tuinhuis is deels dichtgezet met glas, wat de tuin een plek maakt waar u vrijwel het hele jaar door heerlijk kunt vertoeven. De tuin is ook te bereiken via de zijkant van de woning.
De Wilp biedt een prettige mix van rust, ruimte en dagelijkse voorzieningen, zoals een basisschool en sportfaciliteiten. Daarnaast zijn grotere voorzieningen zoals in Marum binnen enkele minuten bereikbaar.
Deze woning biedt een perfecte combinatie van kwaliteit, comfort en een schitterende ligging in het gezellige dorp De Wilp in de gemeente Westerkwartier. Neem snel contact met ons op voor het inplannen van een bezichtiging, en ervaar zelf wat deze woning voor u te bieden heeft.